01 / Полный дизайн-проект

  • Обмерный план с привязкой инженерных коммуникаций
  • План демонтажа перегородок и инженерных коммуникаций
  • План возводимых перегородок с маркировкой дверных проёмов
  • План после перепланировки помещений
  • План размещения сантехнического оборудования с привязкой
  • План полов с указанием типа напольных покрытий и площадей
  • План тёплых полов
  • План потолков с указанием типов используемых материалов
  • План размещения осветительных приборов
  • План включения светильников с расстановкой выключателей
  • План электрики
  • Разрезы и развёртки сложных узлов (при необходимости)
  • Спецификация материалов с указанием количества
  • Чертежи авторских элементов мебели
  • 3D-визуализации всех помещений
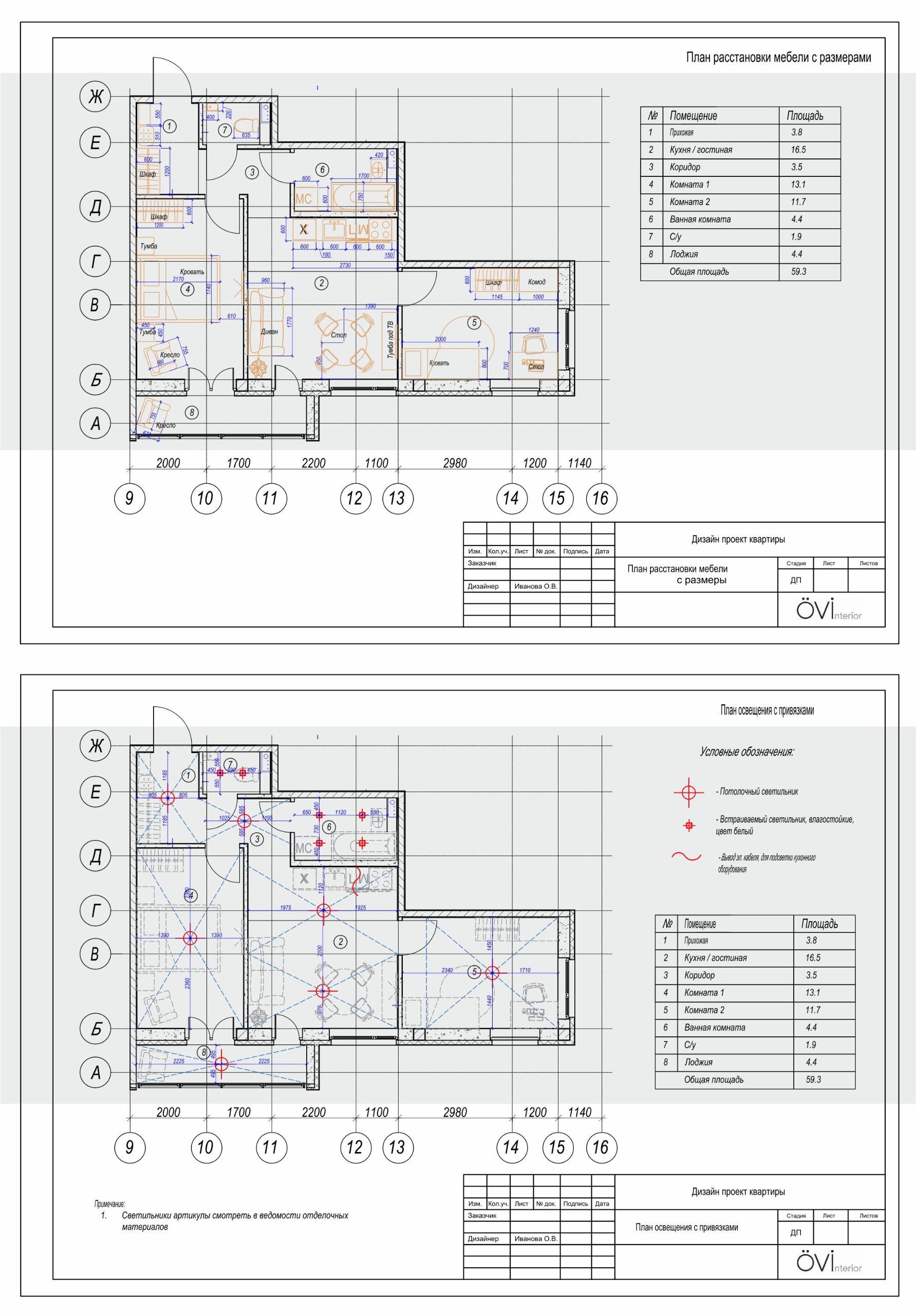
Пример обмерного и рабочего плана интерьера

02 / Авторский надзор

Регулярный контроль реализации дизайн-проекта позволяет вам быть в курсе всего, что происходит на стройке, и быть уверенным, что все процессы соответствуют утверждённому проекту.

Включает в себя:
  • Выезд дизайнера на объект 1 раз в неделю (4 раза в месяц) для аудита строительных работ
  • Контроль соответствия работ утверждённому дизайн-проекту
  • Консультирование строителей по чертежам, развёрткам и планам
  • Внесение корректировок в документацию после демонтажа или выравнивания поверхностей
  • Удалённое консультирование клиента по вопросам реализации проекта
  • Консультации по работе со специальными материалами (плитка, дерево, текстильные обои и др.)
  • Координация подрядчиков из смежных областей

03 / Стоимость и сроки

Полный дизайн-проект:
  • Помещение до 50 кв.м — 5 000 ₽/м²
  • Помещение от 50 до 150 кв.м — 4 500 ₽/м²
  • Помещение от 150 до 250 кв.м — 4 000 ₽/м²
  • Помещение свыше 250 кв.м — 3 500 ₽/м²

Сроки разработки проекта — от 3 месяцев. Коммерческие помещения и социальные объекты рассчитываются индивидуально.

Авторский надзор:
  • До 50 кв.м — 30 000 ₽/мес
  • От 50 до 100 кв.м — 40 000 ₽/мес
  • От 100 до 150 кв.м — 60 000 ₽/мес
  • От 150 до 250 кв.м — 80 000 ₽/мес
  • Свыше 250 кв.м — рассчитывается индивидуально